TÔNG QUAN DỰ ÁN THE OPUSK RESIDENCE
TÊN DỰ ÁN: THE OPUSK RESIDENCE
CHỦ ĐẦU TƯ: Quốc Lộc Phát
PHÁT TRIỂN DỰ ÁN: Sơn Kim Land
VỊ TRÍ: Ô 1-17, khu chức năng số 1 khu đô thị Thủ Thiêm, Quận 2, TP. Thủ Đức, TP.HCM
ĐỊA CHỈ NHÀ MẪU: Số 53 – 55 Nguyễn Đình Chiểu, P.6, Q.3, TP. HCM
TỔNG DIỆN TÍCH DỰ ÁN: 8.518 m²
QUY MÔ: 1 tòa căn hộ cao 36 tầng & 1 tòa văn phòng cao 28 tầng
QUY HOẠCH TỔNG THỂ: DP Architects Pte. Ltd, Singapore
THIẾT KẾ NỘI THẤT: Công ty ID Dept Singapore
THIẾT KẾ CẢNH QUAN: Công ty Site Concepts International, USA & Philippines
THIẾT KẾ CƠ ĐIỆN: Công ty J.Roger Preston Vietnam co. Ltd, Singapore
TỔNG THẦU: Công ty TBU
DIỆN TÍCH CĂN:
Căn hộ 1PN: 58 ~ 60 m2
Căn hộ 2PN: 85 ~ 89 m2
Căn hộ 3PN: 156 ~ 159 m2
Căn hộ 4PN: 226 ~ 230 m2
TIỆN ÍCH:
Trung tâm thể dục thể thao: Gym, spa, yoga…
Vườn nướng BBQ, khu ẩm thực
Thư viện, Quảng trường,Phòng sinh hoạt chung
Đường chạy bộ, Phòng tập Golf, Bể bơi vô cực
SỞ HỮU: Người Việt Nam lâu dài, người nước ngoài 50 năm theo luật pháp hiện hành
Dự án gồm tòa tháp văn phòng 28 tầng & 1 tòa căn hộ 36 tầng
VỊ TRÍ OPUSK METROPOLE THỦ THIÊM
The Opusk Residence tọa lạc tại Thủ Thiêm, một trong những khu đô thị được quy hoạch bài bản nhất Sài Gòn, kết nối cư dân với mọi dịch vụ và tiện ích trong khu vực chỉ cách vài phút lái xe, mang lại giá trị đầu tư bền vững theo thời gian.

5m đến cầu Thủ Thiêm 2

50m đến quảng trường Central Plaza

150m đến bến Bạch Đằng; cầu bộ hành Thủ Thiêm

250m đến TT hội nghị Thành phố

500m đến nhà hát vũ kịch Thành phố; đường Nguyễn Huệ

700m đến đường Đồng Khởi, cầu Thủ Thiêm 1

900m đến hầm Thủ Thiêm
Tọa lạc tại lô 1 – 17 khu chức năng số 1 Thủ Thiêm, Quận 2, TP.HCM
ĐẶC QUYỀN SỐNG TRONG KHÔNG GIAN RIÊNG TƯ
Thiết kế kiến trúc và cảnh quan của
The Opusk Thủ Thiêm men theo dòng chảy của sông Sài Gòn. Mỗi bước chân ở đây là một dấu chạm xúc cảm, nhờ những điểm nhấn trang trí và cách sắp xếp tạo nên một môi trường đầy cảm hứng. Tại
Metropole Thủ Thiêm, mọi yếu tố thiết kế kiến trúc và cảnh quan như một nốt nhạc, tạo nên bản giao hưởng sống vượt thời gian và đề cao sự riêng tư cho cư dân thông qua 40 tiện ích:
Hệ thống tiện ích tầng trệt
Hệ thống tiện ích tầng 5
Hồ bơi tràn bờ (nước mặn), Hồ bơi trẻ em (nước mặn), Hồ bơi gia đình (nước mặn)
Spa ngoài trời, Yoga, Phòng Gym có huấn luyện viên cá nhân chuyên nghiệp
Hồ nước nóng và spa ngoài trời, Bồn tắm massage thuỷ trị liệu , Chòi Sauna
Sân chơi thư giãn trên không Green Loft, Khu Massage ngoài trời
Công viên cây xanh, Khu Cà phê, Sân golf giả lập..
Các tiện ích Yoga, Gym, Massage… được tích hợp tại dự án
Hồ bơi, phòng tập Golf, Nhà hàng Á, Âu…
MẶT BẰNG THE OPUSK RESIDENCE
Mặt bằng The Opusk Residence được thiết kế thông minh với hệ thống khóa cửa bảo mật bằng khuôn mặt và vân tay giúp ngôi nhà thân yêu của bạn luôn an toàn chào đón bạn trở về. Nhằm mang lại một môi trường trong lành, dự án được trang bị hệ thống lọc không khí nhằm bảo vệ sức khỏe cho chủ nhân, các căn hộ được thiết kế hiện đại, diện tích hợp lý:
Mặt bằng chi tiết tầng 6-18
Mặt bằng chi tiết tầng 6-18
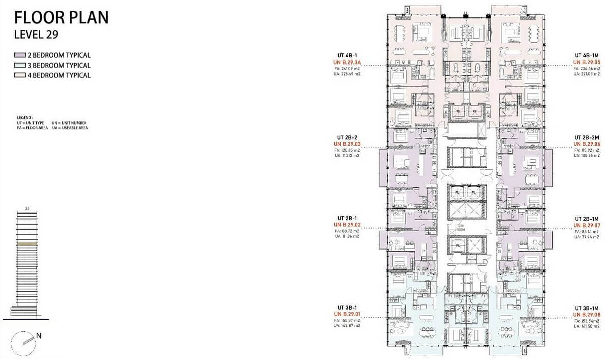
Mặt bằng chi tiết tầng 29
Mặt bằng chi tiết tầng 30
Căn 1 phòng ngủ có diện tích 60m2
Căn 2 phòng ngủ có diện tích 80m2
Căn 3 phòng ngủ có diện tích 110m2
Căn 4 phòng ngủ có diện tích 150 – 170m2

Thiết kế chi tiết căn 1 phòng ngủ

Thiết kế chi tiết căn 2 phòng ngủ 2B1

Thiết kế chi tiết căn 2 phòng ngủ 2B2

Thiết kế chi tiết căn 3 phòng ngủ

Thiết kế chi tiết căn 4 phòng ngủ
Phối cảnh căn 1 phòng ngủ
Phối cảnh phòng khách căn 2 phòng ngủ
Phối cảnh phòng khách căn 3 phòng ngủ
Phối cảnh căn 4 phòng ngủ
GIÁ BÁN THE OPUSK RESIDENCE
Giá bán The Opusk Residence dự kiến từ 10.000 $/m2, đây là mức giá hợp lý bởi các sản phẩm trong khu vực đang giao dịch trên thị trường thứ cấp có mức giá bán tương đương.
The Opusk Metropole đang nhận được sự đón đợi từ phía khách hàng
The Opusk Residence là dự án đáng để Quý khách hàng tham khảo khi lựa chọn tìm mua căn hộ, giải pháp đầu tư bền vững tại bán đảo Thủ Thiêm. Thông tin chi tiết dự án liên hệ PHÒNG KINH DOANH – HOTLINE 0962.151.898