TỔNG QUAN DỰ ÁN CHUNG CƯ THE HARMONA

TÊN THƯƠNG MẠI: THE HARMONA
CHỦ ĐẦU TƯ: Công ty Xuất nhập khẩu Vật tư Tân Bình ( Tamexim )
VỊ TRÍ: 21 Trương Công Định, Phường 14, Quận Tân Bình, TP. Hồ Chí Minh
DIỆN TÍCH DỰ ÁN : 9.137 m2
ĐẤT TMDV : 2.942 m2 – ĐẤT NHÀ TRẺ: 357 m2
MẬT ĐỘ XÂY DỰNG : 43%
QUY MÔ: 3 block căn hộ cao 19 tầng
DIỆN TÍCH CĂN: 48.9m2 – 99.51m2 ( 1 – 3 phòng ngủ ). Tổng 537 căn hộ

Căn 1 phòng ngủ:
48.9m2

Căn 2 phòng ngủ: 72.82m2 – 75m2 – 76.59m2 – 80.74m2

Căn 3 phòng ngủ: 96.07m2 – 99.51m2
BÀN GIAO: Quý II/2013

The Harmona quy mô gồm 3 tòa tháp căn hộ cao 19 tầng & hoàn thiện bàn giao từ 2013
VỊ TRÍ CHUNG CU HARMONA TÂN BÌNH

Chung cu Harmona tọa lạc tại số
21 Trương Công Định, Phường 14, Quận Tân Bình, TP. Hồ Chí Minh. Dự án tọa lạc ngay trung tâm hành chính quận Tân Bình với các tuyến giao thông huyết mạch chạy qua như Trường Chinh, Cộng Hòa, Âu Cơ… cư dân dễ dàng kết nối thuận tiện đến các tiện ích trong khu vực và đi vào trung tâm thành phố.

The Harmona tọa lạc tại số 21 Trương Công Định, Phường 14, Quận Tân Bình, TP. Hồ Chí Minh

Chợ Bàu Cát: 550m

Bệnh viện Thống Nhất: 1,9 km

Sân bay Tân Sơn Nhất: 4,8 km

Chợ Bến Thành – Quận 1: 8 km

Dự án kết nối thuận tiện đến các tiện ích trong khu vực
TIỆN ÍCH CHUNG CƯ THE HARMONA

The Harmona được chủ đầu tư dành nhiều tâm huyết nhằm kiến tạo nên không gian sống tiện nghi, đẳng cấp dành cho cư dân với hệ thống tiện ích đẳng cấp như: Trung tâm thương mại 5 tầng, bể bởi, nhà trẻ, hệ thống an ninh 3 lớp đảm bảo an toàn 24/7…

Hệ thống tiện ích đồng bộ tại The Harmona

Tầng hầm để xe đảm bảo đủ chỗ đỗ ô tô, xe máy cho cư dân

Công viên nội khu, trung tâm thương mại 5 tầng

Trường mầm non, bể bơi, khu vui chơi trẻ em

Hệ thống an ninh 3 lớp, camera an ninh giám sát 24/7…

Dự án tích hợp hệ thống tiện ích đẳng cấp phục vụ cư dân
MẶT BẰNG CHUNG CƯ THE HARMONA TÂN BÌNH

Mặt bằng chung cư The Harmona được bố trí khoa học, với cửa sổ và ban công lớn giúp căn hộ luôn tràn ngập ánh sáng và không khí trực tiếp từ thiên nhiên. Thêm vào đó The Harmona có diện tích hợp lý từ 1-3 phòng ngủ đảm bảo đa dạng nhu cầu của khách hàng.

Block A&B: Mỗi block 202 căn hộ 1-3 phòng ngủ

Block C gồm 165 căn hộ 2-3 phòng ngủ

Mặt bằng tổng thể dự án The Harmona

Mặt bằng tầng The Harmona Tân Bình

Căn 1 phòng ngủ:
48.9m2

Căn 2 phòng ngủ: 72.82m2 – 75m2 – 76.59m2 – 80.74m2

Căn 3 phòng ngủ: 96.07m2 – 99.51m2

Thiết kế căn 1 phòng ngủ – diện tích 48,9m2

Thiết kế căn 2 phòng ngủ – diện tích 72,82m2

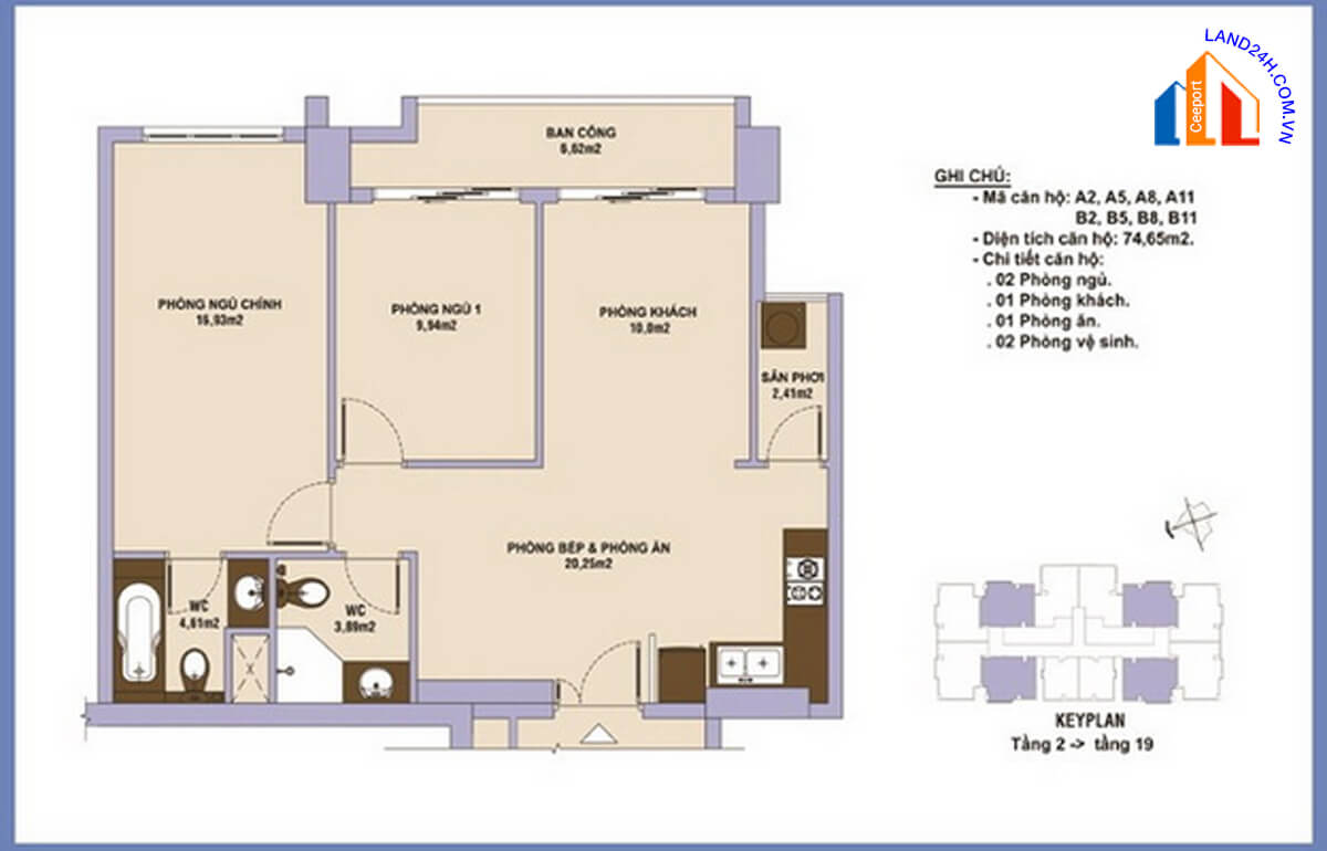
Thiết kế căn 2 phòng ngủ – diện tích 74,65m2

Thiết kế căn 2 phòng ngủ – diện tích 76,59m2

Thiết kế căn 2 phòng ngủ – diện tích 79,86m2

Thiết kế căn 2 phòng ngủ – diện tích 80,74m2

Thiết kế căn 3 phòng ngủ – diện tích 96,07m2

Thiết kế căn 3 phòng ngủ – diện tích 99,51m2
GIÁ BÁN & GIÁ CHO THUÊ CĂN HỘ THE HARMONA

Giá bán căn hộ chung cư The Harmona Trương Công Định giao dịch trên thị trường chuyển nhượng thời điểm tháng 8/2023 từ 36 triệu/m2 – 48 triệu/m2.

Giá bán căn hộ The Harmona Tân Bình từ 36 triệu/m2 – 48 triệu/m2
Giá cho thuê căn hộ chung cư The Harmona Trương Công Định căn 1 phòng ngủ từ 7 triệu/tháng, cho thuê căn 2 phòng ngủ từ 10 triệu/tháng, cho thuê căn 3 phòng ngủ từ 16 triệu/tháng.

Giá cho thuê căn hộ The Harmona Trương Công Định từ 7 triệu/tháng – 16 triệu/tháng