TỔNG QUAN CHUNG CƯ BEE HOME TÂN BÌNH

TÊN DỰ ÁN: BEE HOME
CHỦ ĐẦU TƯ: Công Ty CP Quốc Tế C&T (thành viên của tập đoàn CT Group)
VỊ TRÍ: 16 Nguyễn Đức Thuận, phường 13, Quận Tân Bình, TP. Hồ Chí Minh
DIỆN TÍCH DỰ ÁN : 4.941 m2
MẬT ĐỘ XÂY DỰNG : 62,2%
QUY MÔ: 2 block căn hộ 1 trệt, 1 lửng & 4 tầng cao
DIỆN TÍCH CĂN: 30m2 – 65m2 ( 1 – 2 phòng ngủ ). Tổng 318 căn hộ
BÀN GIAO: Tháng 6/2012

Bee Home là giải pháp căn hộ dành cho người trẻ của chủ đầu tư CT Group
VỊ TRÍ DỰ ÁN CHUNG CƯ BEEHOME

Chung cư Beehome tọa lạc tại
16 Nguyễn Đức Thuận, phường 13, Quận Tân Bình, TP. Hồ Chí Minh. Đường Cộng Hòa là tuyến giao thông huyết mạch của khu Tây Sài Gòn, từ đây cư dân dễ dàng kết nối đến các tiện ích trong khu vực và đi vào trung tâm thành phố.

Chung cư Beehome tọa lạc tại đường B1- khu VK 928 Cộng Hòa, phường 13, Quận Tân Bình, TP. Hồ Chí Minh

E-Town: 400m; Chợ Hoàng Hoa Thám: 700m

Maxi mart Cộng Hòa, trường anh ngữ quốc tế Việt Mỹ: 1km

CT Plaza; Super Bowl : 2km

Sân bay Tân Sơn Nhất: 3km

Dự án kết nối thuận tiện đến các tiện ích trong khu vực
TIỆN ÍCH DỰ ÁN BEE HOME NGUYỄN ĐỨC THUẬN

Giá trị của căn hộ Bee Home không chỉ nhiều dịch vụ mà các dịch vụ được thiết kế tốt nhất dành cho khách hàng: Wifi tốc độ cao, thư viện, giặt ủi, giữ trẻ, phòng hội họp, phòng thể thao, nhà hàng, cửa hàng tiện ích…
Đặc biệt dự án nằm đối diện khu tập Golf với tầm view xanh mát của thảm cỏ chạy dài, nằm trên 2 mặt tiền đường rộng rãi, yên tĩnh để nghỉ ngơi sau thời gian làm việc bận rộn.

Hệ thống tiện ích cao cấp được tích hợp tại dự án
MẶT BẰNG CHUNG CƯ BEEHOME

Mặt bằng chung cư Beehome được bố trí khoa học, căn căn hộ có diện tích từ 30m2 – 65m2 đáp ứng đa dạng nhu cầu và tài chính của khách hàng. Thiết kế cửa sổ lớn giúp căn hộ luôn tràn ngập ánh sáng và không khí trực tiếp từ thiên nhiên.

Block A: Nhìn ra sân golf Tân Sơn Nhất, các tiện ích và dịch vụ ngay dưới tầng trệt căn hộ

Block B: Nhà xe rộng rãi dưới tầng trệt + lửng, có thể chứa được 900 xe máy

Căn hộ tiện ích cho thuê được bố trí từ tầng 2 đến tầng 5

Diện tích căn hộ: 30m2 – 31 – 32 – 33 – 35 – 36 – 37 – 57 – 64 – 65m2

Dự án gồm 2 block căn hộ A-B cao 5 tầng

Mặt bằng tầng trệt

Mặt bằng tầng lửng

Mặt bằng tầng căn hộ điển hình

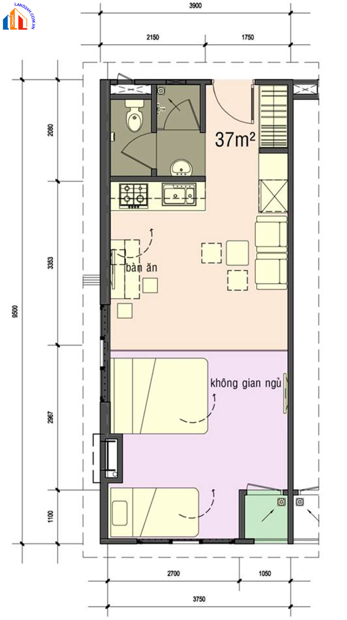
Thiết kế chi tiết căn hộ 1 phòng ngủ

Thiết kế chi tiết căn hộ 2 phòng ngủ
GIÁ BÁN & CHO THUÊ DỰ ÁN BEE HOME

Giá bán căn hộ chung cư Bee Home Tân Bình giao dịch trên thị trường chuyển nhượng thời điểm tháng 8/2023 từ 26 triệu/m2.

Giá bán căn hộ chung cư Beehome Tân Bình từ 26 triệu/m2
Giá cho thuê căn hộ chung cư Beehome quận Tân Bình căn 1 phòng ngủ từ 5 triệu/tháng, cho thuê căn 2 phòng ngủ giá 8 triệu/tháng.

Giá căn hộ cho thuê từ 5 triệu/tháng – 8 triệu/tháng